Тендер на обустройство кабинета рязанского губернатора за 30 миллионов рублей отменен
среда, 28 июня, 2023 - 18:56

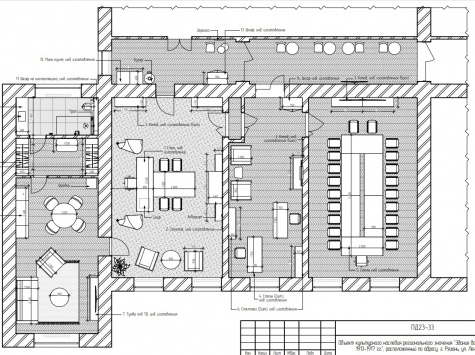
Отменен тендер на выполнение работ по ремонту внутренних помещений объекта культурного наследия регионального значения «Здание банка С. Живаго», 1913-1917 гг.» (улица Ленина, дом 30). По этому адресу находится здание правительства Рязанской области.

Закупка была объявлена 26 июня. Начальная цена контракта – 29,7 миллионов рублей. Заказчиком выступило Управление делами правительства Рязанской области (недавно переименованный Транспортно-хозяйственный комплекс облправительства — прим.Vidsboku). Сообщение об отмене закупки появилось вечером 27 июня.

Контракт предполагал ремонт помещений общей площадью 197 квадратных метров в здании областного правительства. По информации «КП-Рязань», речь идет о переустройстве непосредственно рабочего места губернатора и примыкающих к нему комнат.

Согласно рабочей документации, вся отделка будет полностью демонтирована и заменены отделка, освещение, электрика, системы отопления, вентиляции, кондиционирования. Также будут заменены двери и сантехника в санузле. Для оборудования последнего планировалось приобрести унитаз за 33 тысячи рублей, душевой комплект за 50 тысяч, раковину за 22 тысячи и тумбу под раковину за 83 тысячи рублей.

В проекте: отделка из керамогранита, ковролин и паркет из натурального дуба; изменение планировки помещений: площадь самого кабинета уменьшится почти с 80 до 47 квадратных метров, станет меньше и приемная, но появится тамбур и конференц-зал, для комнаты отдыха — отдельная гардеробная. В документах указана и мебель, которая не входит в стоимость контракта.

Причины отмены этого тендера не указаны.

Подписывайтесь на канал Vidsboku в Telegram

еще по теме

«Атрон» Рязань «Глобус» Рязань «Городские проекты» «Единая Россия» Рязань «Лучшие друзья» Рязань «М5 Молл» Рязань «Мещерская сторона» «Новая газета» Рязань «Сбербанк» Рязань «Северная компания» «Справедливая Россия» Рязань «Яблоко» Рязань Александр Чайка Александр Шерин Алексей Фролов Андрей Кашаев Андрей Красов Андрей Петруцкий Антон Воробьев Аркадий Фомин Арт-Лужайка Арт-лужайка Рязань Беженцы из Украины Валерий Рюмин Виктор Малюгин Виталий Артемов Виталий Ларин Владимир Мимоглядов Водоканал Рязани Выборы в Рязанской области Выборы в Рязанскую городскую Думу Выборы в Рязанскую областную Думу Дашково-Песочня Дмитрий Гудков Евгений Зызин Заборье Застройка Рязани Игорь Кочетков Игорь Морозов Игорь Путин Игорь Трубицын Игорь Туровский Игорь Яшин Ирина Кусова КПРФ Рязань Канищево Касимов Касимовская городская Дума Константиново ЛДПР Рязань Лыбедский бульвар Людмила Кибальникова Министерство печати Рязанской области Минлесхоз Рязанской области Михаил Малахов Михаил Пронин Мост через Оку Николай Булаев Николай Пилюгин Олег Булеков Олег Ковалев Олег Шишов Ольга Мишина Ольга Чуляева Петр Пыленок Подбелка Поджоги машин Пойма Павловки Пойма трех рек Политика Рязани Поляны Праймериз «Единой России» РГУ им. Есенина РМПТС РНПК Роман Путин Рязанская городская Дума Рязанский кремль Рязанский нефтезавод Рязанский район Рязанский цирк Рязань Сасово Северный обход Семен Сазонов Сергей Дудукин Сергей Ежов Сергей Сальников Сергей Филимонов Скопин Солотча Спас-Клепики ТРЦ «Премьер» Трасса М5 УМВД Рязанской области Федор Провоторов Шаукат Ахметов ЭРА