«По решению заказчика» – облправительство прокомментировало отмену тендера на обустройство кабинета рязанского губернатора за 30 миллионов рублей
четверг, 3 августа, 2023 - 21:04

В аппарате губернатора и правительства Рязанской области на запрос Vidsboku прокомментировали отмену закупки на ремонт внутренних помещений в здании правительства Рязанской области по адресу улица Ленина, д. 30.

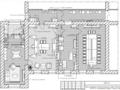
Напомним, 26 июня на сайте госзакупок появился тендер на ремонт помещений общей площадью 197 квадратных метров. Цена контракта – 29,7 миллионов рублей. Заказчиком выступило Управление делами правительства Рязанской области. Контракт предполагал полную замену отделки, освещения, электрики, систем отопления, вентиляции, кондиционирования. Проект предусматривал изменение планировки помещений, оборудование конференц-зала и гардеробной. Также планировалось заменить двери и сантехнику в санузле. Для оборудования последнего планировалось приобрести унитаз за 33 тысячи рублей, душевой комплект за 50 тысяч, раковину за 22 тысячи и тумбу под раковину за 83 тысячи рублей. По информации «КП-Рязань», речь шла о переустройстве непосредственно рабочего места губернатора и примыкающих к нему комнат.

На следующий день, когда информация о закупке и ее детали были опубликованы в СМИ, тендер был отменен.

На вопросы Vidsboku о том, действительно ли тендер был объявлен на ремонт кабинета губернатора, причинах его отмены и том, будет ли закупка проводиться вновь, в аппарате губернатора и правительства Рязанской области ограничились кратким пояснением о том, что закупка «отменена по решению заказчика».

Подписывайтесь на канал Vidsboku в Telegram

еще по теме

«Атрон» Рязань «Глобус» Рязань «Городские проекты» «Единая Россия» Рязань «Лучшие друзья» Рязань «М5 Молл» Рязань «Мещерская сторона» «Новая газета» Рязань «Сбербанк» Рязань «Северная компания» «Справедливая Россия» Рязань «Яблоко» Рязань Александр Чайка Александр Шерин Алексей Фролов Андрей Кашаев Андрей Красов Андрей Петруцкий Антон Воробьев Аркадий Фомин Арт-Лужайка Арт-лужайка Рязань Беженцы из Украины Валерий Рюмин Виктор Малюгин Виталий Артемов Виталий Ларин Владимир Мимоглядов Водоканал Рязани Выборы в Рязанской области Выборы в Рязанскую городскую Думу Выборы в Рязанскую областную Думу Дашково-Песочня Дмитрий Гудков Евгений Зызин Заборье Застройка Рязани Игорь Кочетков Игорь Морозов Игорь Путин Игорь Трубицын Игорь Туровский Игорь Яшин Ирина Кусова КПРФ Рязань Канищево Касимов Касимовская городская Дума Константиново ЛДПР Рязань Лыбедский бульвар Людмила Кибальникова Министерство печати Рязанской области Минлесхоз Рязанской области Михаил Малахов Михаил Пронин Мост через Оку Николай Булаев Николай Пилюгин Олег Булеков Олег Ковалев Олег Шишов Ольга Мишина Ольга Чуляева Петр Пыленок Подбелка Поджоги машин Пойма Павловки Пойма трех рек Политика Рязани Поляны Праймериз «Единой России» РГУ им. Есенина РМПТС РНПК Роман Путин Рязанская городская Дума Рязанский кремль Рязанский нефтезавод Рязанский район Рязанский цирк Рязань Сасово Северный обход Семен Сазонов Сергей Дудукин Сергей Ежов Сергей Сальников Сергей Филимонов Скопин Солотча Спас-Клепики ТРЦ «Премьер» Трасса М5 УМВД Рязанской области Федор Провоторов Шаукат Ахметов ЭРА